Получите праздничную выгоду – миллион рублей. «Квартиры дня» от «Территории жизни»
В преддверии праздничных выходных со 2 по 4 ноября ГК «Территория жизни» делает выгодное предложение для всех, кто хотел купить квартиру в жилых комплексах от крупнейшего застройщика региона.
«В рамках спецпредложения покупатель получает скидку на квартиры в каждом проекте ГК «Территория жизни» - «Арбековская застава», «Лугометрия» и «Чаадаев». Представлены варианты разных планировок и метража. Поэтому желающим оформить сделку на самых выгодных условиях стоит поторопиться. Для комфорта наших клиентов в праздничные дни наши офисы будут работать в привычном режиме. Вы можете спланировать для себя удобное время и посетить наши офисы продаж, выбрать квартиру, посмотреть новые шоурумы, а наш ипотечный брокер предложит оптимальные варианты покупки», – рассказывает коммерческий директор ГК «Территория жизни» Оксана Маркова.
Какие выгодные предложения действуют?
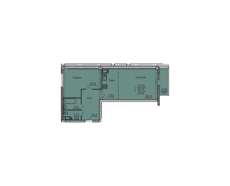
«Арбековская застава». Специальное предложение для молодой семьи
Квартиры от 4,7 млн рублейв уже сданных домах. Для молодой пары, которая только начала совместную жизнь, отличным вариантом станет двушка евроформата. Просторная кухня-гостиная с возможностью зонирования и отдельная комната – отличный вариант.
.jpg)
Плюсом станет выгодная цена – от 78 000 рублей за квадратный метр. Платеж за ипотеку составит - 19 000 рублей в месяц. Дом сдан и вы сможете сразу переехать.
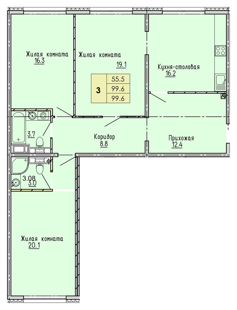
«Лугометрия». Для большой семьи
Чем больше семья – тем больше квартира вам нужна! Поэтому рассмотрите квартиры в сданных домах жилого комплекса «Лугометрия».

Здесь представлен богатый выбор квартир с готовой отделкой, кухонным гарнитуром и техникой. Просторные комнаты, большие кухни, возможности для зонирования.
Представленные квартиры уже сданы и готовы к тому, чтобы собственник заселился – потому что уже выполнена отделка «Все включено». Посмотрите на нее уже сейчас по ссылке.
«Чаадаев». Квартира ребенку на будущее.
Одно из перспективных направлений покупки – квартиры на будущее детям. Пока они растут – оформляйте сделку по выгодной цене – от 12 тысяч рублей в месяц!

Одно из главных преимуществ – прекрасное расположение в 10 минутах езды от центра города. Хорошая транспортная доступность и социальная инфраструктура. Рядом - школы , детские сады , медицинские и образовательные учреждения, магазины. Будущему студенту или молодому специалисту важно успеть и на учебу, и на встречу с друзьями и интересно провести время. Поэтому оформляйте сделку уже сейчас со скидкой более 100 000 рублей! И все с полностью готовой отделкой «Все включено». Серия 25. Оцените квартиру пройдя по ссылке.
.jpg)
Проекты от «Территории жизни» выбрали уже более 16 000 пензенцев. Причины: развитая качественная инфраструктура, высокие стандарты строительства, справедливая цена и полностью готовая отделка. Станьте и вы обладателем квартиры от «Территории жизни» на выгодных условиях. Оформите сделку сейчас, пройдя по ссылке. Интересующие вопросы можно задать менеджерам по телефону 203-000.
В праздничные дни офисы будут работать в привычном режиме, с 9:00 до 21:00 без перерывов. Поэтому можете спланировать визит в комфортное для вас время.
Адреса:
- Ул. Героя России Жоги, 3.
- Ул. Складская, 19, литер С.
*В рамках акции «Квартира дня» покупателю предоставляется пул квартир с дисконтом. Не суммируется с другими акциями. Полные условия уточняйте у представителей застройщика. В акции участвуют квартиры в домах расположенных по адресам:
- г. Пенза, ул. Генерала Глазунова, 6, 1-я очередь. Цена за кв. м. – от 77 000 рублей (дом сдан);
- г. Пенза, ул. Генерала Глазунова, 6, 2-я очередь. Цена за кв. м. – от 76 000 рублей (дом сдан);
- г. Пенза, ул. Генерала Глазунова, 6, 1-я очередь. Цена на евродвушки – от 78 000 рублей (дом сдан).
- г. Пенза, ул. Генерала Глазунова, 11, размер скидки 7% (дом сдан).
- г. Пенза, ул. Побочинская, строение №1, размер скидки - 5%. Застройщик ООО СЗ «Центр недвижимости», проектная декларация на сайте наш.дом.рф;
- г. Пенза, ул. Побочинская, строение №2, размер скидки - 7%. Застройщик ООО СЗ «Центр недвижимости», проектная декларация на сайте наш.дом.рф;
- г. Пенза, ул. Побочинская, строение №3 и №4, размер скидки - 4%. Застройщик ООО СЗ «Жилье», проектная декларация на сайте наш.дом.рф;
- г. Пенза, ул. Побочинская, строение №17 и №18, размер скидки - 9%. Застройщик ООО СЗ «СМАРТ», проектная декларация на сайте наш.дом.рф;
- г. Пенза, ул. Яшиной, 2, 4, 6, размер скидки - 10% (дома сданы);
- г. Пенза, ул. Яшиной, 5, 9, размер скидки - 9% (дома сданы);
- Г. Пенза, ул. Чаадаева стр. №1, этапы №1, №2; размер скидки 4%. Застройщик ООО СЗ «Лугометрия 11», проектная декларация на сайте наш.дом.рф;
Количество квартир ограничено! Список квартир уточняйте у представителей застройщика.Срок действия акции – до 5 ноября 2025.
**Расчет произведен для квартиры площадью 61,06 кв.м., расположенной по адресу г.Пенза, ул. Генерала Глазунова, 6, 1-я очередь. Размер ПВ - 30,01% от стоимости квартиры. Застройщик – ООО СЗ «Т-Строй», проектная декларация на сайте наш.дом.рф.
***Расчет произведен для квартиры площадью 99,8 кв.м., расположенной по адресу г.Пенза, ул. Яшиной, 2. Размер ПВ - 30,01% от стоимости квартиры. Застройщик – ООО СЗ «Лугометрия 19», проектная декларация на сайте наш.дом.рф.
****Расчет произведен для квартиры площадью 32,17 кв.м., расположенной по адресу г.Пенза, ул. Чаадаева стр. №1, этапы №1. Размер ПВ - 30,01% от стоимости квартиры. Застройщик – ООО СЗ «Лугометрия 11», проектная декларация на сайте наш.дом.рф.
Реклама. ООО «МК». Erid: 2VfnxxJcQxh
